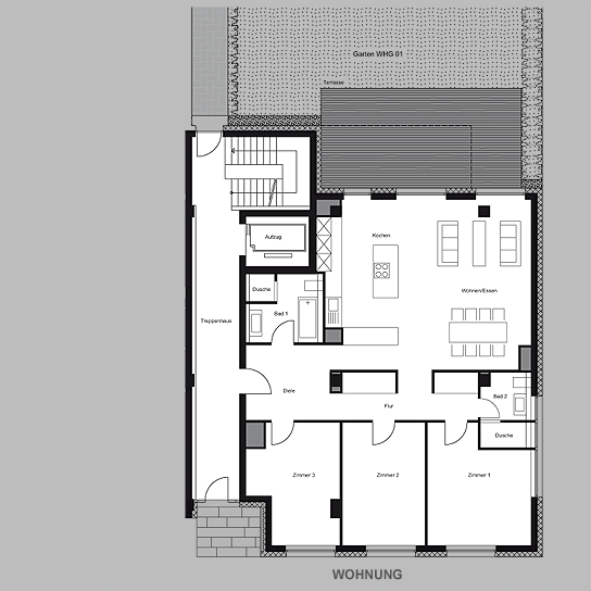
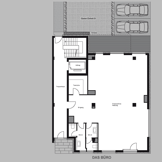
Leben und Arbeiten –
die Erdgeschosswohnung
Ein Arbeitsplatz sollte immer auch ein Platz zum Leben sein. Die Erdgeschosswohnung der Oberlindau 80 kann beides. Als funktionale Büroräume mit Veranda und Blick ins Grüne. Oder als individueller Lebensraum. Auf Wunsch barrierefrei vom eigenen Parkplatz bis in die Wohnung.



